КОМПЛЕКС АПАРТАМЕНТОВ И ОБЩЕСТВЕННЫЙ ЦЕНТР В КВАРТАЛЕ "РИВЕР ПАРК"

ФУНКЦИЯОБЩЕСТВЕННЫЕ, ЖИЛЫЕ

ЛОКАЦИЯ — РОССИЯ, МОСКВА, УЛ. РЕЧНИКОВ, ВЛ.7

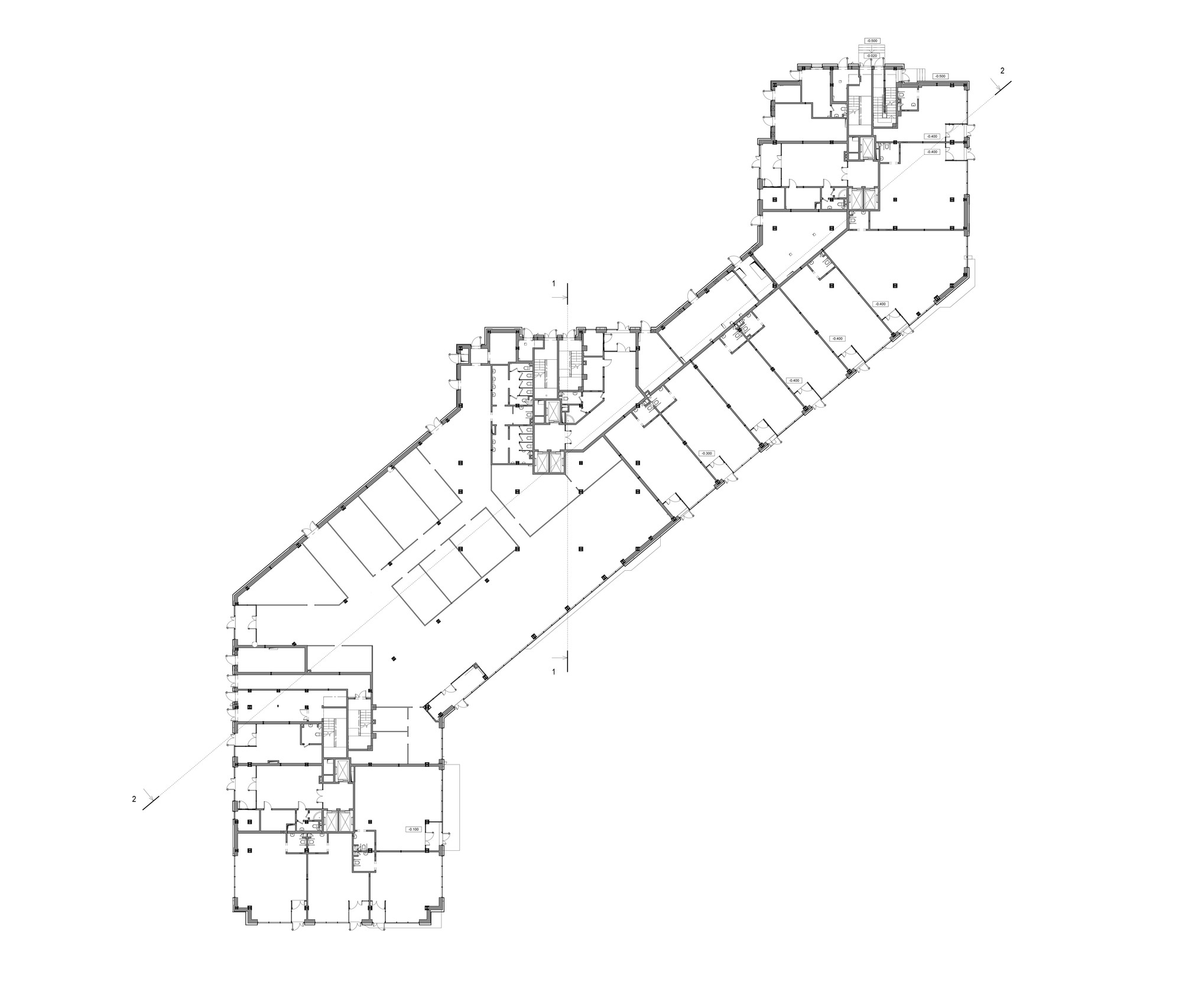
ПЛОЩАДЬ — 27 000 КВ М

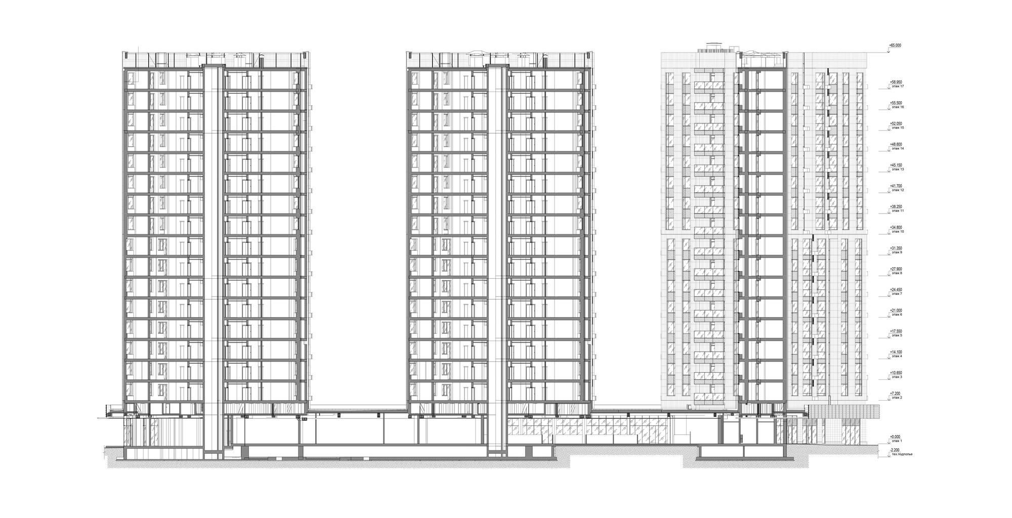
КОЛ-ВО ЭТАЖЕЙ:

В ПОДЗЕМНОЙ ЧАСТИ — 1

В НАЗЕМНОЙ ЧАСТИ — 18

СТАДИЯ ПРОЕКТИРОВАНИЯ — КОНЦЕПЦИЯ, ПРОЕКТ, РД

СТАТУС ОБЪЕКТА — РЕАЛИЗОВАН

ОКОНЧАНИЕ СТРОИТЕЛЬСТВА — 2018

АРХИТЕКТОРЫ:

АНТОН НАГАВИЦЫН

ВЛАДИСЛАВ РЯБОВ

МАРИНА КАЛАШНИКОВА

АНАСТАСИЯ ДАВЫДОВА

АНТОН СЫСОЕВ

АСЯ ИЛЬИНА

АЛЕКСАНДРА КУЧЕНЕВА

ПАВЕЛ ДЖОНАТТАН ПУХНО БЕРМЕО

ПРИ УЧАСТИИ:

СУРЕН МЕЛИКСЕТЯН

ЗАДАЧА — разместить у реки комплекс комфорт класса. Оптимизировать все применяемые технические решения для возможного повторного применения.

КОНТЕКСТ — применение несущего металлического каркаса.

РЕШЕНИЕ — вместо запланированного протяженного корпуса, растянутого вдоль реки, мы разместили на общем стилобате три башни, развернув их таким образом, чтобы обеспечить наилучшие видовые характеристики из всех окон

ДЕТАЛИ — отделка фасадов предусматривает использование высококачественных современных отделочных
материалов. Для облицовки высотной части секций используются керамогранит, стемалит и остекление лоджий в системе алюминиевых
витражей. Для стереобата выбрана комбинация керамических панелей, керамических ламелей и алюминиевых витражей с
крупноформатными стеклопакетами для витрин магазинов и вестибюлей.

ТЕХННОЛОГИИ — на проекте решалось огромное количество технических задач, связанных с применением металлокаркаса. Его приминение позволило скомпоновать здание так, что все колонны спрятаны внутри наружных и внутренних стен, а балки утоплены в толщину перекрытий. Потребовалось разработать комплекс нестандартных решений и узлов с учетом особенности данной схемы, но в результате в интерьерах здания металлические колонны и балки никак себя не проявляют.

+7 (495) 410-27-42

archstruktura@gmail.com

Россия, Москва, 10512

Центр дизайна «Art Play», Нижняя Сыромятническая, 10, стр.9, офис 337